Thiết Kế Nhà Văn Phòng Hiện Đại 5×12m – Không Gian Làm Việc Đẳng Cấp Giữa Lòng Phố
Dự án được định hướng theo phong cách hiện đại, lấy cảm hứng từ sự tinh giản, tiện nghi và năng lượng sáng tạo của môi trường làm việc đô thị. Với lợi thế mặt tiền 5m, KTS đã khéo léo sử dụng mảng kính lớn kết hợp lam chắn nắng để mang lại sự thông thoáng, sang trọng và tận dụng tối đa ánh sáng tự nhiên.
Mặt đứng được thiết kế với hình khối mạnh mẽ, mạch lạc, tạo ấn tượng ngay từ cái nhìn đầu tiên. Tông màu trung tính kết hợp điểm nhấn nhôm – kính mang lại cảm giác hiện đại, chuyên nghiệp, đồng thời hòa quyện cùng không gian phố thị sầm uất của Hải Phòng.
Công năng linh hoạt – Kết nối kinh doanh và sinh hoạt
Công trình được thiết kế đa năng và linh hoạt, vừa phục vụ mục đích kinh doanh, vừa đảm bảo không gian sống riêng tư, tiện nghi cho gia đình chủ đầu tư:
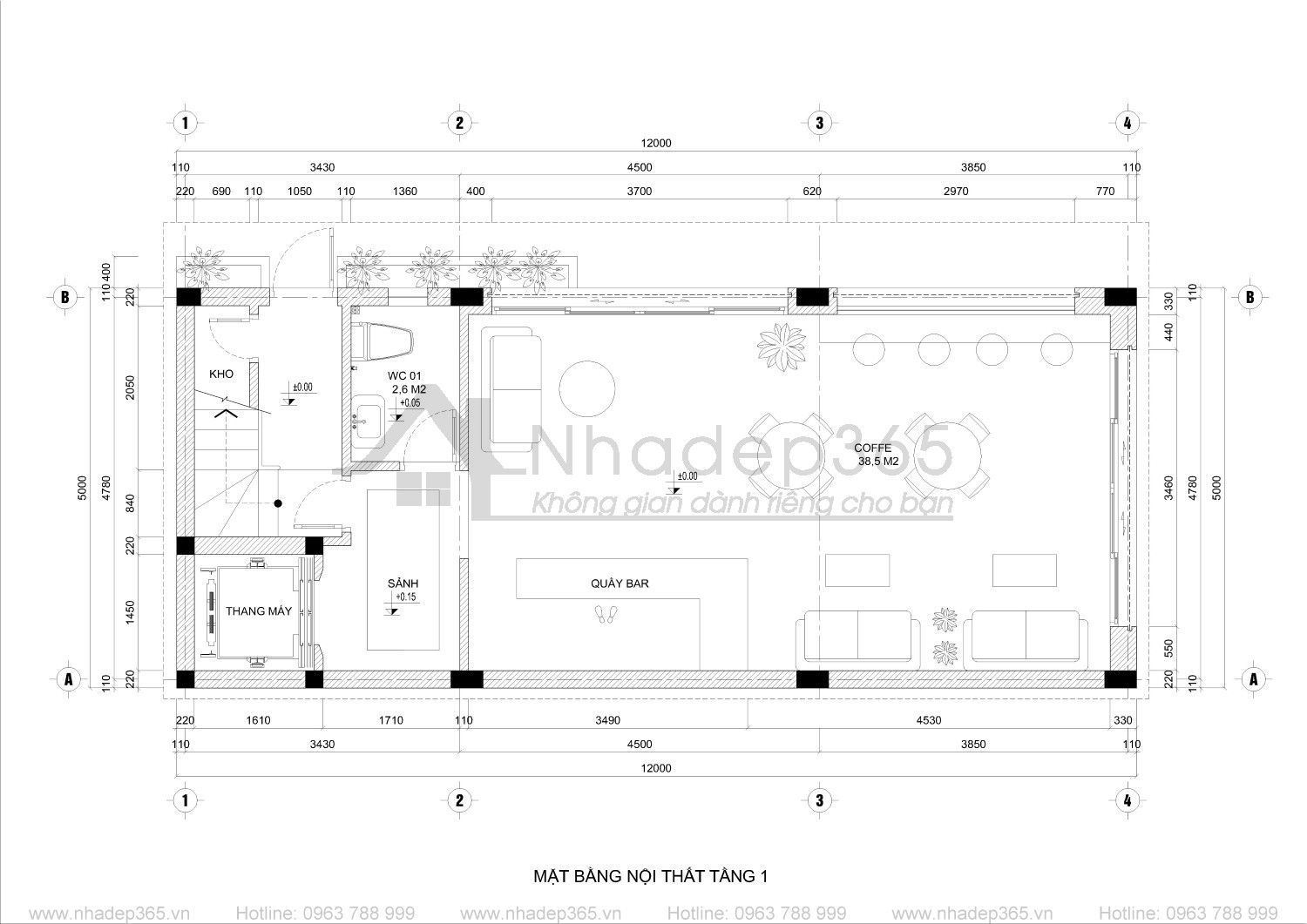
Tầng 1 – 2: Không gian quán cà phê được bố trí mở, kết nối trực tiếp với vỉa hè – lý tưởng cho mô hình kinh doanh dịch vụ.
Tầng 3 – 5: Các tầng văn phòng cho thuê được bố trí hợp lý, đảm bảo thông thoáng, tiện nghi với hệ thống ánh sáng, điều hòa và lối đi riêng.
Tầng 6: Căn hộ sinh hoạt của gia đình được thiết kế ấm cúng, đầy đủ tiện ích.
Tầng tum: Khu kỹ thuật và sân thượng là nơi thư giãn, ngắm cảnh, kết nối không gian xanh giữa lòng đô thị.

Mặt tiền luôn là yếu tố quan trọng nhất trong thiết kế kiến trúc, đặc biệt là các công trình mang tính thương mại như nhà khách sạn hoặc tính chất thương hiệu như các nhà xây dựng phòng văn phòng. Một thiết kế chuyên nghiệp, lịch sự, béo túc và có thể hiện rõ bản sắc của doanh nghiệp sẽ là công thức tiếp thị hoàn hảo cho doanh nghiệp đó và sử dụng được ý tưởng thực sự từ khách hàng và đối tác. Bên viền đó yếu tố thẩm mỹ và công năng cũng tác động không nhỏ vào trải nghiệm làm việc của nhân viên tòa nhà.
Thiết kế kiến trúc tòa nhà văn phòng nổi bật nhờ cách sử dụng vách kính cường lực toàn bộ mặt tiền bên ngoài. Chi tiết này giúp phản xạ ánh sáng, tạo nên hình khối kiến trúc nổi bật giữa lòng thành phố Hải Phòng hoa lệ ở bất kỳ thời điểm nào trong ngày. Việc bố trí vách kính lớn như vậy vẫn giúp tạo ra những kết quả mang lại cảm giác giác quan cho quá trình trở nên chiều thế và ngang hơn nữa. Thiết kế chính này là biểu tượng và biểu tượng nổi bật được nhấn mà bạn có thể đọc lại để lưu mẹo cho các công trình tương lai của mình.

Cung cấp cho bạn đọc bức tranh toàn cảnh về giải pháp thiết kế xây dựng nhà văn phòng đẹp mắt này, trong phạm vi bài viết, chúng tôi cũng đã tổng hợp những hình ảnh về bố trí công năng nhà làm việc này cho bạn đọc tham khảo tài liệu. Nhà đẹp 365 kính chúc quý vị được cho mình ý tưởng thiết kế và bố trí văn phòng hài hòa nhất, khoa học nhất. 






Kiến trúc sư chú trọng đến sự tối giản trong chi tiết, tối đa hóa công năng, mang lại hiệu quả sử dụng cao và cảm giác rộng rãi cho từng không gian. Vật liệu hiện đại như kính, thép, gạch ốp giả đá và gỗ công nghiệp cao cấp được kết hợp hài hòa, tạo nên vẻ đẹp sang trọng nhưng không phô trương.
Không gian nội thất bên trong được định hướng theo tông sáng, thân thiện, lấy con người làm trung tâm – nơi mỗi tầng đều mang lại trải nghiệm thoải mái, chuyên nghiệp và hiệu quả.
Công trình Thiết Kế Nhà Văn Phòng Hiện Đại 5×12m không chỉ là một dự án kiến trúc mà còn là biểu tượng của sự kết hợp hoàn hảo giữa kinh doanh và sinh hoạt, giữa công năng và thẩm mỹ. Đây là lựa chọn lý tưởng cho những chủ đầu tư mong muốn tạo dựng không gian làm việc đẳng cấp, nâng cao giá trị thương hiệu và tận hưởng cuộc sống tiện nghi giữa trung tâm đô thị.
>>Xem thêm: Gỗ óc chó – Đỉnh cao của sự sang trọng và đẳng cấp trong thiết kế nội thất
