Tổ Ấm Bình Yên Giữa Thiên Nhiên – Biệt Thự Vườn 2 Tầng Tại Văn Giang – Hưng Yên
Giữa nhịp sống hiện đại đầy hối hả, mong muốn trở về một không gian sống yên bình, chan hòa với thiên nhiên đang trở thành xu hướng của nhiều gia đình Việt. Mẫu biệt thự vườn 2 tầng tại Văn Giang – Hưng Yên là minh chứng rõ nét cho lối sống ấy – nơi mọi góc nhỏ đều được chăm chút để mang đến sự thư thái, ấm áp và gần gũi. Với thiết kế hiện đại hòa quyện cùng cảnh quan xanh mát, đây chính là tổ ấm lý tưởng để tận hưởng trọn vẹn những phút giây bình yên bên người thân.
Biệt Thự Vườn 2 Tầng Tại Văn Giang – Hưng Yên
Điểm nổi bật đầu tiên khi vừa bước qua cánh cổng của ngôi nhà này là khoảng sân lát gạch rộng rãi ngay lối vào. Với sự đắt đỏ của thị trường bất động sản, thì một khoảng sân rộng để cho trẻ nhỏ vui đùa, để gia đình sinh hoạt chung đúng là một khoản đầu tư khá “chịu chơi”.
Về tiện ích sinh hoạt, căn nhà vườn 2 tầng này được chia làm 2 khu vực chính tạo thành hình chữ L: khu nhà mái ngói 1 tầng và khu nhà ống 2 tầng. Về cơ bản, Mẫu thiết kế biệt thự nhà vườn này đáp ứng tốt cho một gia đình phố thị có từ 4-5 thành viên.
Mặt bằng tầng 1:

Không gian tầng 1 của khu biệt thự đã được thiết kế rất tiện ích cho các sinh hoạt gia đình: Phòng khách, ban thờ, phòng ngủ của ông bà, nhà bếp, sân phơi. Ở tầng 1, các kiến trúc sư của Nhadep365 đã lồng ghép rất tinh tế vào bản thiết kế điền viên này các vị trí đặt cây xanh, ô thoáng, mái hiên, mái ngói để tạo không khí tươi mát, gần gũi với thiên nhiên của ngôi nhà.
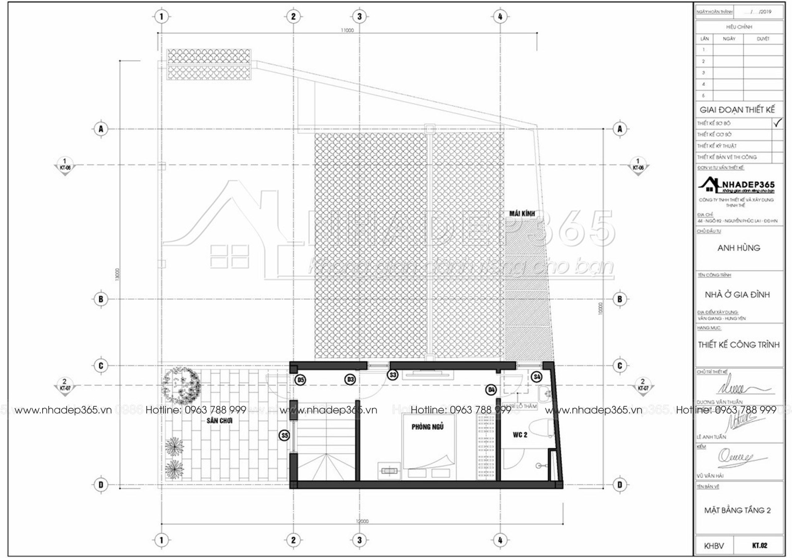
Mặt bằng tầng 2:

Với yêu cầu của anh Hùng về một căn biệt thự 2 tầng ở Hưng Yên cho một gia đình cơ bản, chúng tôi đã không xây dựng quá nhiều công trình bê tông, cốt thép, mà thay vào đó là các khoảng không gian thoáng. Với diện tích tầng 2 của khu nhà, gia chủ chỉ xây thêm 1 phòng ngủ, 1 nhà vệ sinh. Diện tích còn lại, anh Hùng sử dụng để thiết kế sân chơi trên tầng 2, tự tạo một khoảng sân riêng nhiều hoa lá cỏ cây.
Mặt bằng tầng mái:

Phối cảnh tổng thể mẫu thiết kế biệt thự nhà vườn 2 tầng
Thân thiện, gần gũi và dung dị là những gì ta có thể cảm nhận khi được nhìn diện mạo chung của ngôi biệt thự vườn 2 tầng này. Tông màu trắng vàng của tường kết hợp với nâu đỏ của mái ngói làm tăng thêm sự ấm áp, thân thương, có chút cổ kính của căn nhà.

Phần sân chơi tầng 2 được tận dụng triệt để với hệ thống cột để làm giàn cây leo. Chủ sở hữu có thể tự tay chăm sóc các giàn hoa hồng hay những gốc lan rừng. Nhờ đó, gia chủ tận hưởng được vẻ đẹp thiên thiên và không khí trong lành xung quanh căn nhà của mình.

Sở hữu căn nhà không tầng lầu, nhưng anh Hùng tự hào vì căn biệt thự sân vườn của anh. Bởi nó vẫn thu hút ánh nhìn của cả người quen, người lạ khi ghé thăm. Đặc biệt, trở về nhà, anh tìm lại được sự bình yên mà lối thiết kế nhà vườn mang lại.

Lấy cảm hứng từ tinh thần “sống xanh – sống chậm”, biệt thự vườn 2 tầng trên khu đất 12x13m tại Văn Giang, Hưng Yên được kiến tạo như một bản hòa ca giữa kiến trúc hiện đại và thiên nhiên trong lành. Từng đường nét, vật liệu và không gian đều được tính toán tỉ mỉ nhằm tối ưu công năng, đón nắng gió tự nhiên và tạo cảm giác thư thái tuyệt đối cho gia chủ. Đây không chỉ là một ngôi nhà, mà là không gian sống an nhiên giữa miền quê thanh bình.
Một tổ ấm giữa thiên nhiên – nơi mỗi sáng thức dậy là một ngày mới đầy năng lượng. Biệt thự vườn 2 tầng tại Văn Giang – Hưng Yên mang đến không gian sống lý tưởng: hiện đại, thoáng đãng và đậm hơi thở bình yên.
>>Xem thêm: Chạm Đến Sự An Nhiên – Không Gian Spa Hiện Đại Giữa Lòng Thuỷ Nguyên
