Thiết Kế Nhà Phố 3 Tầng Hiện đại Diện Tích 5×9m tại Sóc Sơn Hà Nội

Thiết kế nhà phố 3 tầng hiện đại diện tích 5x9m được gia chủ đánh giá cao bởi đáp ứng được yêu cầu cao về thẩm mỹ và công năng của căn nhà.

0

Xu hướng Thiết Kế Nhà Phố 3 Tầng Hiện đại

Thiết kế nhà phố 3 tầng hiện đại ngày càng được các chủ đầu tư ưu tiên lựa chọn. Đặc biệt tại các thành phố lớn và vùng đô thị sầm uất, mật độ các tòa nhà ống, nhà phố cao tầng ngày càng lớn. Đáp ứng nhu cầu trên, các mẫu nhà ống hiện đại luôn được kiến trúc sư cải tiến để đảm bảo cả tính thẩm mỹ và công năng của căn nhà.

Hôm nay, đội ngũ của nhadep365.vn xin giới thiệu với các bạn, một mẫu thiết kế nhà phố 3 tầng hiện đại diện tích 5x9m tại Sóc Sơn, Hà Nội. Với thiết kế này, chúng tôi tự tin đã cùng gia chủ hoàn thiện căn nhà trong mơ với mức độ hài lòng cao nhất.

Thông tin chung công trình nhà phố 3 tầng thiết kế hiện đại

Chủ đầu tư của căn nhà – anh Hải chia sẻ rằng mảnh đất mặt tiền 5m đẹp này là do anh tích góp rất lâu mới mua được. Dù có diện tích sàn không lớn 45m2, nhưng căn nhà phố này là mơ ước cả đời của anh. Do đó, kiến trúc sư đã lắng nghe rất kỹ những ý tưởng, yêu cầu của gia chủ, từ đó biến chúng thành sự thật: Một căn nhà phố hiện đại, nổi bật giữa con phố đông đúc của thị trấn Sóc Sơn.

 Chủ đầu tư:Anh Hải
 Địa chỉ:Sóc Sơn – Hà Nội
 Loại hình:Thiết kế nhà phố 1 mặt tiền
 Số Tầng:3.5 tầng
 Mặt tiền:Mặt tiền 5m
 Tổng diện tích:180 m2
 Công năng:
  • Tầng 1: Gara; phòng ngủ và vệ sinh chung.
  • Tầng 2: Phòng Khách; Bếp; Ăn và Ban Công.
  • Tầng 3: Phòng ngủ bố mẹ; Phòng ngủ con; P. ngủ giúp việc; 2 vệ sinh.
  • Tầng Tum: Phòng thờ; Sân phơi và trồng cây.
 Đơn vị thiết kế:Nhà Đẹp 365
 Năm thực hiện:2017

Phối cảnh tổng thể Thiết kế Nhà phố 3 tầng hiện đại mặt tiền 5m

Nhìn tổng thể, căn nhà của anh Hải có thiết kế khá bắt mắt. Nó dễ dàng nổi bật giữa con phố và thu hút ánh nhìn của người qua kẻ lại. Bởi lẻ, căn nhà là sự kết hợp hòa hợp, tinh tế của nhiều yếu tố như: màu sắc,

Tone màu sáng sang trọng

Màu sắc chủ đạo được lựa chọn là màu trắng cùng với ghi, nâu là màu phối. Lựa chọn tone màu sáng khiến căn nhà rất thời thượng và sang chảng, đồng thời tạo cảm giác vững chãi, rộng rãi. Mệnh của gia chủ cũng rất được các kiến trúc sư cân nhắc khi lựa chọn tone màu của căn nhà.

Hình khối vừa linh hoạt vừa đối xứng, cân bằng của căn nhà phố hiện đại

Khác với nhà theo phong cách cổ điển, căn nhà phố 3 tầng của anh Hải không quá cầu kỳ về hoa văn trang trí mà chỉ tập trung vào những hình khối mang đậm sự mạnh mẽ, khỏe khoắn. Các phần cấu trúc các tầng của căn nhà được chia thành các không gian nhỏ hơn, đặt xen kẽ khi đua ra ngoài mặt tiền, khi lùi vào bên trong.

Tuy thế, bố cục linh hoạt này không làm mất đi tính đối xứng, cân bằng của ngoại thất tổng thể. Sự thoải mái, giản dị, nhưng đầy tinh tế của mặt tiền này có hiệu quả thẩm mỹ rất cao, thể hiện được sự thống nhất trong phong cách thiết kế căn nhà.

Bố Cục Cân Bằng, Bắt Mắt Của Nhà Phố 3 Tầng Hiện đại Diện Tích 5×9m tại Sóc Sơn Hà Nội

Hệ thống cửa kính dùng trong nhà phố 3 tầng

Hệ thống cửa kính được thiết kế và lắp đặt một cách khoa học khiến cho tòa nhà của gia chủ trở nên sang trọng, thông thoáng và hiện đại. Hơn thế, vật liệu kính là yếu tố không nhỏ mang lại ánh sáng tự nhiên cho toàn bộ căn nhà cũng như đảm bảo độ an toàn, cách âm, cách nhiệt.

Không gian xanh trong thiết kế ngoại thất

Đưa thiên nhiên xanh vào trong thiết kế ngoại thất là yêu cầu quan trọng của gia chủ. Do vậy, chúng tôi đã thiết kế khá nhiều không gian xanh trong căn nhà phố hiện đại này. Đó là sân vườn (3.5m2) phía sau tầng 1, ban công (6.6m2) trên tầng 2, bồn hoa (1.3m2) tầng 3 và phần sân rất rộng (20m2) trên tầng thượng. Các khoảng không gian thoáng này được bố trí khoa học, phân phối đan xen trong bố cục của căn nhà. Do đó, vừa tiết kiệm được diện tích sử dụng, vừa tạo được sự thông thoáng trong toàn bộ căn nhà.

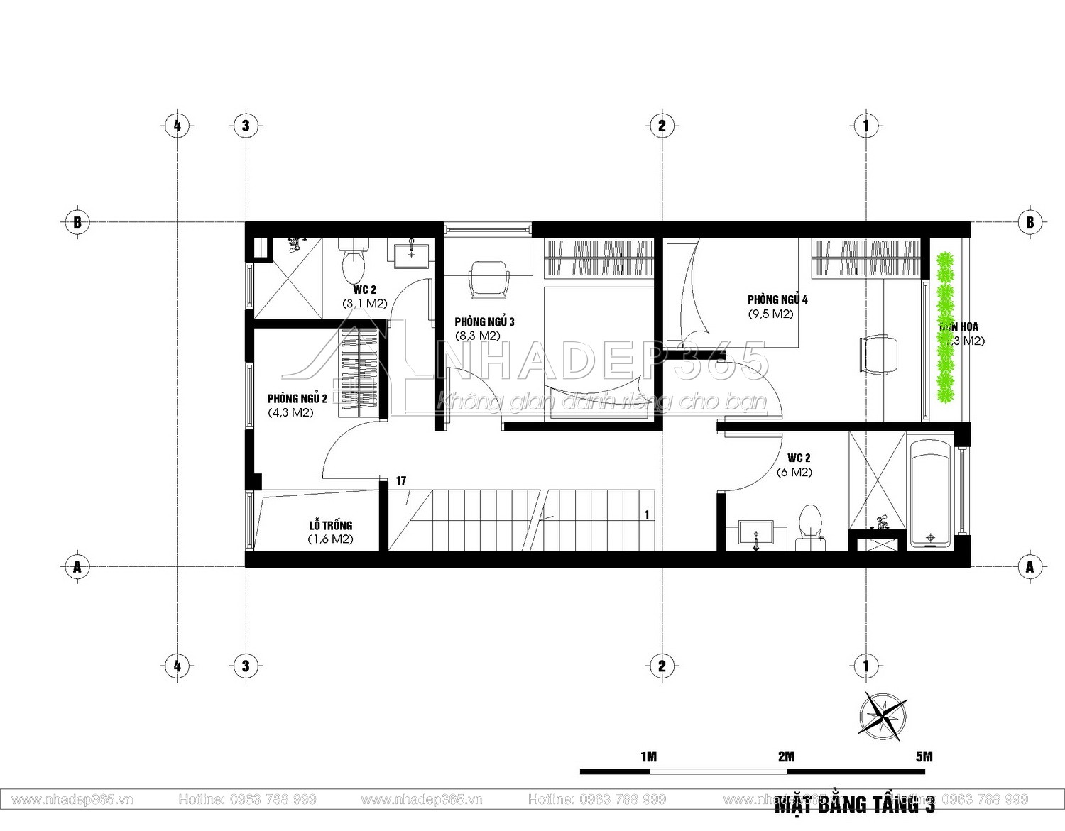
Bản vẽ mặt bằng thiết kế nhà phố 3 tầng hiện đại diện tích 5x9m

Mong rằng phần phối cảnh tổng thể của căn nhà phố mặt tiền 5m đã khiến bạn đọc hài lòng. Vậy với một diện tích không lớn 45m2, làm thế nào để tối ưu hóa không gian bên trong căn nhà? Mục đích là vừa đáp ứng được thẩm mỹ, vừa đảm bảo được yêu cầu sử dụng? Mời bạn tham khảo cách bố trí công năng của căn nhà này nhé!

Tầng 1: Gara, Phòng ngủ 1, WC1, Sân vườn

Với diện tích ngay sau cửa cuốn, gia chủ muốn sử dụng làm gara ô tô. Phòng ngủ (12.4m2) và gara được ngăn cách bởi Nhà vệ sinh (3.4m2). Do đó nơi nghỉ ngơi này đã giảm được phần nào tiếng ồn của phương tiện và phố xá bên ngoài. Điểm nổi bật ở đây là phần sân vườn xinh xắn phía mặt sau của tòa nhà, ngay cạnh phòng ngủ. Mỗi buổi sáng, gia chủ tỉnh dậy, bước ra khu vườn nhỏ ngay sau nhà và tận hưởng không khí trong lành của ngày mới.

Tầng 2: Ban công, Phòng khách, Bếp ăn

Toàn bộ mặt bằng tầng 2 được sử dụng làm không gian sinh hoạt chung. Phòng khách và bếp ăn không hề có vách để ngăn cách. Do đó, diện tích mặt bằng trở nên rộng và thông thoáng hơn. Cũng như sự ấm áp, sum họp của gia đình luôn được đảm bảo.

Tầng 3: Phòng ngủ bố mẹ; Phòng ngủ con; P. ngủ giúp việc; 2 vệ sinh.

Mặt bằng tầng 3 được sử dụng làm nơi nghỉ ngơi của các thành viên trong gia đình. Phòng ngủ lớn của bố mẹ được bố trí cạnh bồn hoa xinh xắn ngoài ban công. Nhà vệ sinh rộng hơn (6m2) được trang bị đầy đủ, kể cả bồn tắm thư giãn. Với bố cục này, gia chủ được tận hưởng, nghỉ ngơi và thư giãn hoàn toàn.

Tầng tum và tầng mái

Kết luận: 

Trên đây là thiết kế nhà phố 3 tầng hiện đại diện tích 5x9m tại Sóc Sơn. Với những ai yêu thích sự tiện nghi, tối ưu không gian thì thiết kế biệt thự hiện đại này rất đáng để bạn tham khảo. 

Liên hệ ngay với Nhà đẹp 365 để được tư vấn thêm nhé!

Link tham khảo thêm: Thiết Kế Nhà Phố 3 Tầng Kết Hợp Kinh Doanh Diện Tích 5×20m Tại Thành Phố Lào Cai


    ĐĂNG KÝ TƯ VẤN MIỄN PHÍ



    THIẾT KẾ NHÀ ĐẸP 365
    Trụ sở chính: Số 19/13/380 Tô Hiệu - Hải Phòng
    Hotline: 0963788999
    Email: nhadep365.vn@gmail.com
    Website : www.nhadep365.vn


    QUAY LẠI XEM CÁC CÔNG TRÌNH ĐÃ LÀM

    Bạn cũng có thể thích
    Để lại một bình luận:

    Địa chỉ email của bạn sẽ không được công bố.

    This site uses Akismet to reduce spam. Learn how your comment data is processed.