Thiết Kế Nhà Phố 4 Tầng Diện Tích 7×9m tân cổ điển Hà Tây – Hà Nội
Bên dưới là các bản vẽ chi tiết của thiết kế Nhà Phố 4 tầng diện tích 7x9m mang phong cách tân cổ điển tại Hà Tây, Hà Nội.
Thông tin chi tiết về mẫu Thiết Kế Nhà Phố 4 Tầng Diện Tích 7×9m tân cổ điển Hà Tây – Hà Nội
Chủ đầu tư: Gia đình anh Thức
Chủ trì thiết kế: Tiến Thuần
Địa điểm thi công: Thạch Thất – Hà Tây – Hà Nội
Diện tích xây dựng: 7x9m2x 4 tầng
Kinh phí xây dựng: 1.3 tỷ đồng
Đơn vị thiết kế: Nhà đẹp 365
Sơ đồ mặt bằng 4 tầng của mẫu thiết kế nhà phố 7m mặt tiền
Mặt bằng tầng 1:
Tầng thứ nhất bao gồm Gara với diện tích 40m2, bên cạnh là nhà vệ sinh (4m2), sảnh thang (4m2) và một tiểu cảnh. Mặt bằng tầng 1 được thiết kế đơn giản nhằm tối ưu hóa không gian nhưng vẫn tạo được cảnh quan nhờ tiểu cảnh. Vì vậy, chủ nhân căn nhà có thể trang bị thêm cây cối, bể cá,.. để tạo thêm điểm nhấn và không gian sinh động và bớt khô khan cho tầng gara của căn nhà.

Mặt bằng tầng 2:
Tại tầng 2 là các phòng: phòng khách, phòng bếp và phòng ăn được thiết kế một cách khéo léo, phù hợp dù trong cùng một không gian với diện tích 40m2. Do đó, căn phòng của bạn sẽ trở nên rộng rãi và thông thoáng hơn. Bên cạnh đó, tòa nhà được các kiến trúc sư bố trí khéo léo với toàn bộ khu giao thông và vệ sinh được tách rời nằm ở 1 bên, ngoài tiết kiệm diện tích giao thông cũng như phân vùng chức năng được rõ ràng. Nhà vệ sinh tách biệt với không gian phòng khách, phòng bếp và phòng ăn với diện tích 5m2 tạo nên sự sạch sẽ, riêng tư cho những người sống trong ngôi nhà.

Mặt bằng tầng 3:
Tầng 3 là không gian riêng với 2 phòng ngủ, một phòng rộng 20m2 và một phòng rộng 14m2. Để đảo bảo nhu cầu sinh hoạt riêng của từng người, chúng tôi đã thiết kế thêm 2 nhà vệ sinh tách biệt rộng 6m2 và 4m2. Có thể thấy, tầng 3 là một không gian sống hoàn hảo cho những ai ưa thích sự riêng tư và tiện nghi.

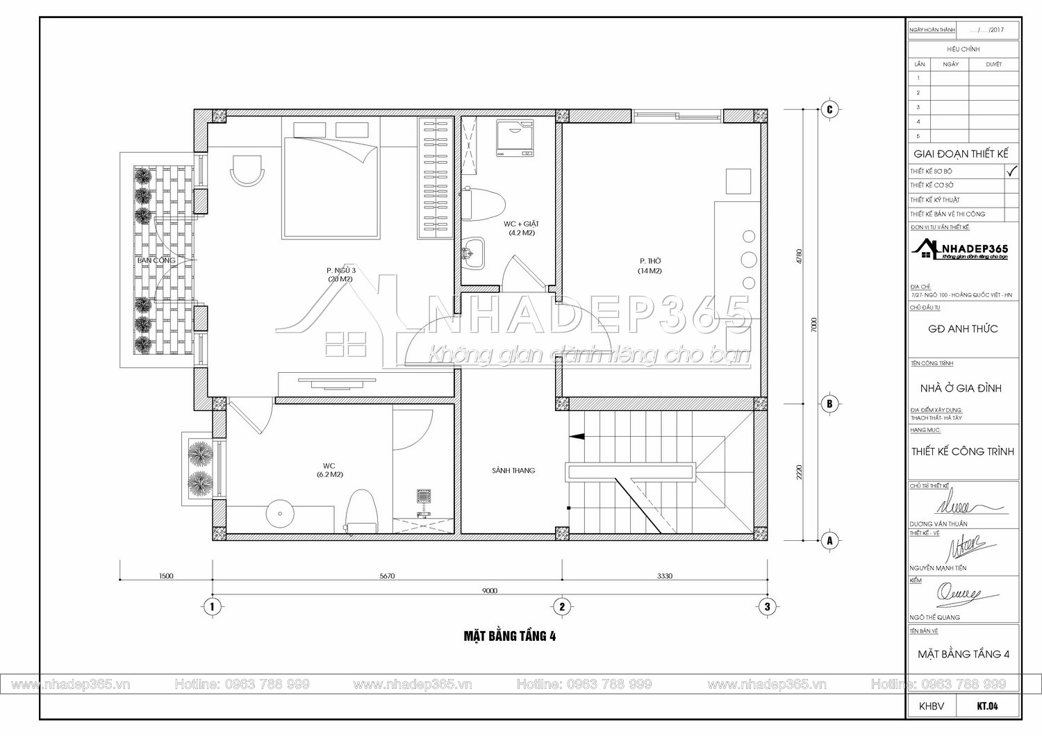
Mặt bằng tầng 4:
Cuối cùng là tầng 4 với 1 phòng ngủ, 1 phòng thờ và 2 nhà vệ sinh. Khác với các phòng ngủ ở tầng 3, phòng ngủ tại tầng 4 được thiết kế với một không gian khá rộng, diện tích lên tới 20m2. Với diện tích này, chủ sở hữu căn nhà có thể thoải mái trang bị, bố trí thêm nhiều vật dụng, thiết bị tiện nghi khác.

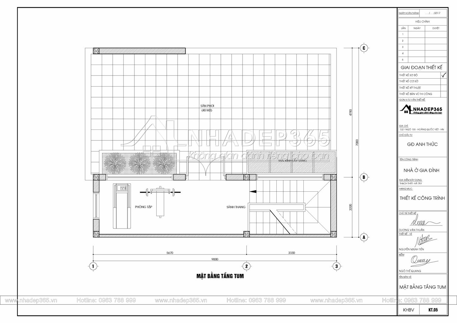
Mặt bằng tầng tum:
Tầng tum rất rộng là nơi có thể vừa làm sân phơi và làm không gian thể dục cho cả gia đình

Mặt bằng tầng mái:

Phối cảnh nhà phố 4 tầng phong cách tân cổ điển
Dưới đây là hình ảnh của căn nhà, hãy cùng ngắm nhìn chiêm ngưỡng mẫu nhà phố tân cổ điển này ở dưới nhé!
Mẫu nhà phố 4 tầng được thiết kế nhà phố với phong cách tân cổ điển chắc hẳn sẽ là một sự lựa chọn tuyệt vời cho nhưng ai yêu thích sự hòa quyện giữa hiện đại và cổ xưa. Sự sang trọng và tiện nghi chính là những điểm nổi bật của ngôi nhà, mang đến cảm giác thân thuộc nhưng cũng không kém phần mới mẻ, phóng khoáng. Bên cạnh đó là sự kết hợp khéo léo giữa các mảng kính lớn, các nguyên vật liệu đặc trưng của lối kiến trúc hiện đại cùng với một chút chấm phá của truyền thống cổ điển. Không những vậy, không gian ngoại thất còn được trang trí thêm bởi hệ thống cây xanh, chậu hoa, cây cảnh khiến cho mẫu thiết kế nhà phố 4 tầng đẹp trở nên gần gũi và sống động hơn.


