Thiết kế nhà 4 tầng lô phố liền kề tại Trương Định – Hoàng Mai – Hà Nội
Nếu bạn sinh sống và làm việc tại các thành phố lớn, chắc hẳn không dưới một lần bạn bị choáng ngợp bởi vẻ đẹp của những thiết kế nhà liền kề tại đây. Không chỉ tạo ấn tượng bởi sự đồng bộ trong phong cách mà những ngôi nhà này còn đặc biệt trong thiết kế nội – ngoại thất nữa đấy. Hôm nay, Nhà đẹp 365 xin giới thiệu đến bạn mẫu thiết kế nhà phố liền kề 4 tầng tại Trương Định – lô liền kề điển hình cho phong cách nhà hiện đại, sang trọng.
Thiết kế nhà phố lô liền kề – sang trọng, tiện nghi cho gia chủ
Mỗi lô nhà liền kề gồm 4 tầng và 1 tầng mái được thiết kế dạng mái thái rất phù hợp với dạng khí hậu Việt Nam. Màu sơn được sử dụng là gam màu xám kết hợp với nâu nhạt rất ấn tượng tạo cảm giác nhẹ nhàng, thoải mái mỗi khi nhìn thấy căn nhà dù là từ phía xa. Mời bạn chiêm ngưỡng hình ảnh phối cảnh thiết kế lô nhà liền kề này:
Như bạn thấy, chúng tôi thiết kế căn nhà lô liền kề này với hệ thống cửa nhôm kính 4 cánh, cửa sổ đặc biệt rộng giúp căn nhà luôn luôn thông thoáng và mát mẻ nhất. Trong thiết kế khu liền kề này, phần vỉa hè phía ngoài sẽ được trồng nhiều cây xanh giúp giảm nhiệt cho căn nhà cũng như giúp không khí nơi đây trong sạch hơn. Mặc dù là thiết kế nhà liền kề nhưng mỗi lô nhà đều có cửa ra vào riêng biệt và đều có khoảng cách biệt sao cho gia chủ được riêng tư và thoải mái nhất.

Phối cảnh tổng thể công trình nhà phố liền kề

Phối cảnh góc công trình nhà phố liền kề
>> Tham khảo thêm: Thiết kế nhà phố 4 tầng diện tích 4×16,5m hiện đại tại Bắc Ninh
Chi tiết nội thất 4 tầng mẫu thiết kế nhà phố liền kề Trương Định
Sơ đồ khu vực sinh hoạt chung
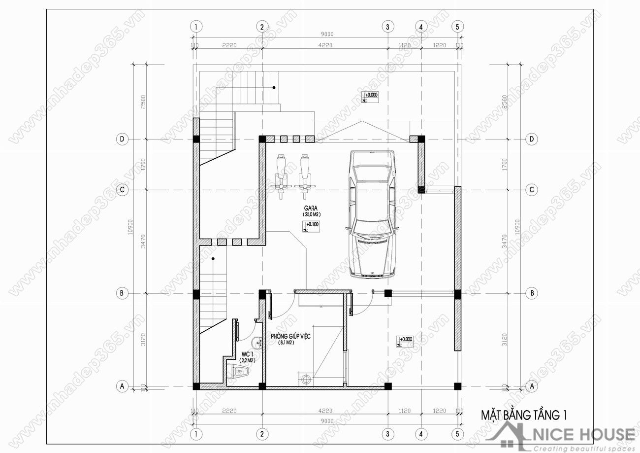
Ở thiết kế này, diện tích tầng 1 chủ yếu dùng làm gara để xe, phía cuối nhà có 2 phòng riêng dùng làm phòng cho người giúp việc và kho để đồ cho cả gia đình. Ngoài ra, kỹ sư không quên thiết kế một lối đi nhỏ bên nhà có thể để gia chủ trồng hoa hoặc làm lối đi lại, khu vui chơi của trẻ nhỏ… Hơn thế nữa, một nhà vệ sinh nhỏ phía cuối nhà cũng rất có ích đó nha.
Mặt bằng tầng 1 công trình nhà phố liền kề
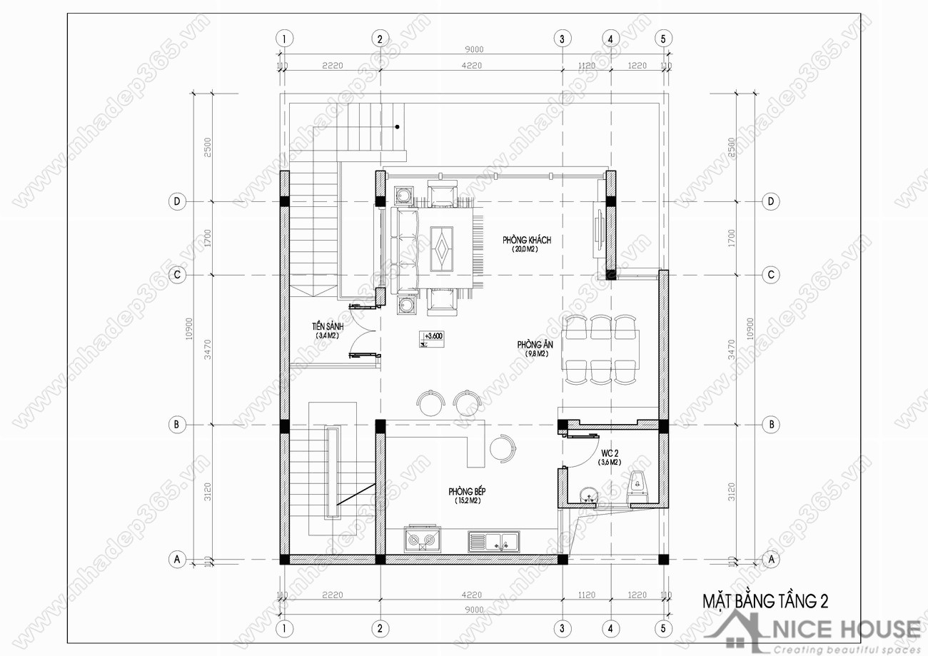
Nếu như tầng 1 chủ yếu là nơi để xe và một vài phòng phụ thì chắc chắn tầng 2 này là nơi sinh hoạt chung của cả gia đình rồi. Từ tầng 1 đi lên, bạn sẽ đi thẳng đến phòng tiếp khách chính của căn nhà, cũng chính là căn phòng hướng ra mặt tiền tầng 2 với hệ thống cửa nhôm kính 4 cánh đón ánh sáng thiên nhiên hiệu quả. Được làm thông với phòng khách là khu vực bàn ăn của cả gia đình và một phòng bếp nấu ăn rất rộng nơi các mẹ các chị trong gia đình trổ tài nấu nướng mỗi dịp cả nhà quây quần.

Mặt bằng tầng 2 công trình nhà phố liền kề
Sơ đồ mặt bằng không gian riêng của các thành viên
Tầng 3 và tầng 4 là khu vực phòng ngủ và phòng thờ của gia đình. Trong thiết kế nhà liền kề này, căn nhà 4 tầng có tổng cộng 4 phòng ngủ trong đó 3 phòng ngủ ở tầng 3 cho các thành viên trong gia đình và một phòng ngủ ở tầng 4 dùng để tiếp khách ở lại qua ngày. Khu vực nhà vệ sinh cũng được các kỹ sư bố trí rất hợp lí, để tiết kiệm diện tích căn nhà, mỗi tầng đều có một khu vực vệ sinh chung trừ một căn phòng ngủ tại tầng 3 sử dụng nhà WC riêng.

Mặt bằng tầng 3 công trình nhà phố liền kề
Ngoài ra, nhìn vào bản thiết kế bạn sẽ thấy rằng tầng 4 sẽ có một sân thượng rất rộng. Gia chủ có thể sử dụng nơi này làm nơi phơi đồ, trồng rau sạch phục vụ sinh hoạt hoặc thiết kế thành một vườn nướng BBQ nhỏ tại gia cho gia đình quây quần mỗi dịp cuối tuần.

Mặt bằng tầng 4 công trình nhà phố liền kề
Trên đây là toàn bộ giới thiệu của chúng tôi đến bạn về mẫu thiết kế nhà liền kề 4 tầng phong cách hiện đại tại Trương Định. Đây là mẫu nhà đơn giản nhưng cũng không kém phần khác biệt trong thiết kế. Nếu muốn biết thêm thông tin về mẫu thiết kế này về: diện tích cụ thể, vật liệu chi tiết hay giá thành thiết kế và xây dựng thì bạn đừng ngần ngại mà nhấc máy lên liên hệ với chúng tôi theo địa chỉ dưới đây để được chuyên gia tư vấn cho bạn. Cảm ơn bạn đã theo dõi bài viết này.
