Thiết kế biệt thự vườn 2 tầng Hòa Bình
Thiết kế biệt thự vườn 2 tầng Hòa Bình
Biệt thự Vườn 2 tầng này với phong cách thiết kế đơn giản và hiện đại nằm ở Hòa Bình, không gian sống hòa quyện với thiên nhiên, đưa người sử dụng đắm chìm trong khung cảnh của cuộc sống thư thái và hưởng thụ.
Biệt thự vườn này được thiết kế trên khuôn viên đất rộng 550m2, với diện tích xây dựng là 11x15m, chiều cao là 2 tầng.
Mặt bằng tầng 1: Lối tiếp cận từ 2 phía, toàn bộ không gian xung quanh được mở rộng hướng nhìn bằng những mảng cửa kính lớn, giúp cho người sử dụng có cảm giác gần gũi và tận dụng được tối đa mức sử dụng. Toàn bộ mặt bằng là không gian công cộng sinh hoạt cho cả gia đình, một phòng khách rộng lớn liên thông với phòng bếp và ăn. Vệ sinh được bố trí ở góc sau khu đất rất kín đáo và sạch sẽ, cùng một phòng tắm đứng tiếp cận từ bên ngoài vườn vào.

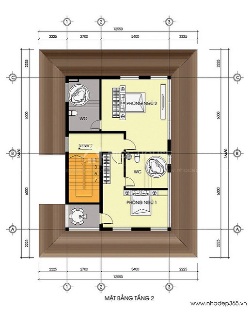
Tiếp đến mặt bằng tầng 2: Là không gian của 2 phòng ngủ lớn có đầy đủ các tiện nghi sử dụng cho gia đình hiện đại và sang trọng. Hai phòng ngủ được bố trí lấy sáng và thông gió ở hướng tốt nhất, phòng ngủ phía trước có thêm ban công để có thể đi ra ngồi thư giãn cà phê và ngắm cảnh.

Mặt bằng mái: Mặt bằng mái với cách thiết kế theo kiểu 4 mái gắn liền truyền thống thân thiện theo lối kiến trúc Việt Nam

Phối cảnh góc công trình biệt thự vườn

Phối cảnh tổng thể công trình biệt thự vườn

