Thiết Kế Biệt Thự Vườn 2 Tầng 8.5x18m – Điểm Nhấn Kiến Trúc Tại Hải Phòng
Thiết kế biệt thự vườn 2 tầng 8.5x18m tại Tiên Lãng, Hải Phòng mang đến một không gian sống vừa hiện đại, tiện nghi vừa chan hòa cùng thiên nhiên. Với lối kiến trúc thanh thoát, bố cục khoa học và công năng tối ưu, mẫu biệt thự này không chỉ là tổ ấm lý tưởng cho gia đình mà còn trở thành điểm nhấn kiến trúc nổi bật giữa vùng quê yên bình.
Mẫu Biệt Thự Vườn 2 Tầng 8.5x18m – Thiết Kế Đẹp, Hiện Đại Tại Tiên Lãng
Ngôi nhà được thiết kế hài hòa giữa không gian xanh của sân vườn và sự tinh tế trong từng chi tiết nội – ngoại thất, đáp ứng trọn vẹn nhu cầu sinh hoạt, nghỉ ngơi và thư giãn của gia chủ. Đây là lựa chọn hoàn hảo cho những ai đang tìm kiếm một mẫu biệt thự vườn 2 tầng hiện đại, sang trọng nhưng vẫn gần gũi với thiên nhiên.
Hãy cùng khám phá chi tiết mẫu thiết kế biệt thự này để tìm ra ý tưởng cho không gian sống trong mơ của bạn!
Không gian thoáng bên ngoài biệt thự là một trong những điểm đặc trưng nhất của hạng mục thiết kế này, do đó mà cần được chú trọng ngang với công trình kiến trúc chính. Khu vườn trong căn biệt thự của anh Thanh được thiết kế với chủng loại phong phú, từ cây bụi đến cây có bóng mát, từ dây leo đến các khóm hoa nhỏ nhiều màu.

(Mẫu thiết kế biệt thự sân vườn 2 tầng)
Để phù hợp với không gian của một căn biệt thự nhà vườn 2 tầng và đáp ứng yêu cầu về phong cách của gia chủ, kiến trúc sư đã thiết kế khối kiến trúc chính với phong cách Tân cổ điển và chú tâm đến sự nhẹ nhàng và tinh tế. Các khối cửa, mái lớn, cạnh tường đều sử dụng các họa tiết đã giản lược, vừa làm nổi bật sự tinh tế tổng thể, vừa hạn chế chi phí trang trí rườm rà, lại vừa tránh làm rối mắt người nhìn.

(Căn nhà, khu vườn như bừng lên trong nắng, là một tổng thể hài hòa và bình yên xinh đẹp)
2. Bản vẽ thiết kế biệt thự sân vườn diện tích 8.5x18m
Mặt bằng tổng thể

Bản vẽ tổng thể tầng 1 thể hiện gia chủ đã rất hào phóng dành cho hơn ½ diện tích khu đất của mình để làm khu vườn mơ ước. Với lợi thế của diện tích xây dựng lớn, khu công trình xây dựng chính vẫn đáp ứng đủ mọi nhu cầu sống hiện tại, tiện ích của một gia đình có kinh tế ổn định.
Một khoảng sân rộng lát gạch đỏ xinh xắn, một chòi nghỉ nhỏ trong khuôn viên vườn, các lối đi xen kẽ giữa các khóm cây, tất cả để tạo ra một khu vực hưởng thụ không khí trong lành của khu vườn.
Mặt bằng bố trí nội thất tầng 1

Khu nhà được thiết kế theo thiết kế hình chữ L. Mặt bằng tầng 1 bao gồm bếp ăn, khu phòng khách, phòng thờ, hai buồng ngủ và nhà vệ sinh. Phòng thờ và phòng khách thông nhau, khiến khách ghé thăm cảm nhận được không gian rộng rãi, sang trọng. Phòng ngủ được thiết kế với cửa mở ra sân vườn thoáng mát. Bên hông nhà sẽ là không gian tiểu cảnh giúp ngôi nhà hài hòa và sinh động hơn.
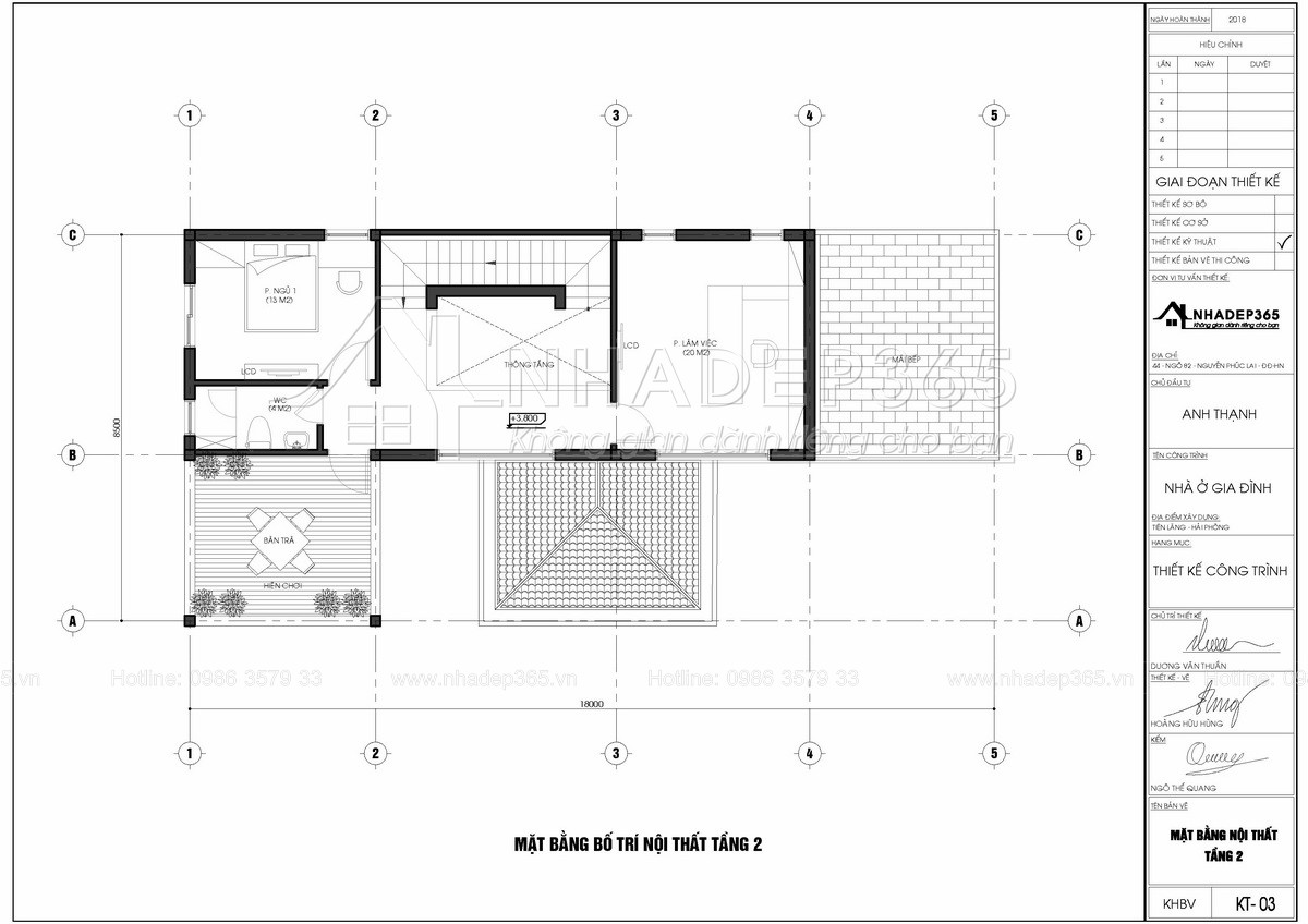
Mặt bằng bố trí nội thất tầng 2

Tầng 2 ngoài bổ sung thêm 1 phòng ngủ, 1 phòng làm việc tiện ích cho gia chủ. Các kiến trúc sư đã tinh tế thiết kế một ban công/sân chơi vuông vắn. Khoảng sân nhỏ có mái che nâu, có dàn cây xanh , có bà đá ghi và chậu hoa nhiều màu. Đây chính là khoảng không tuyệt vời của căn biệt thự 2 tầng. Gia chủ có thể phóng tầm mắt ngắm quang cảnh vườn cây dưới nhà và tận hưởng cảm giác thư giãn ngay khi bước ra khỏi phòng làm việc nhiều bộn bề.

3. Tổng kết dự án thiết nhà biệt thự 2 tầng tại Tiên Lãng, Hải Phòng
Thiết kế căn nhà điền viên này phù hợp với những đại gia đình nhiều thế hệ, nhiều thành viên. Gia đình có diện tích xây dựng vừa đủ và yêu thích không gian mở với thiên nhiên. Vốn đầu tư vào dự án cũng không thật sự quá lớn. VÌ khối công trình chính được thiết kế khá giản lược để bật nên nét trang trọng.
Với đội ngũ kiến trúc sư giàu kinh nghiệm, NHADEP365 luôn mang đến những giải pháp thiết kế sáng tạo, tối ưu công năng và thẩm mỹ, giúp gia chủ sở hữu không gian sống hoàn hảo, bền vững và đậm dấu ấn riêng.
NHADEP365 – Kiến tạo tổ ấm, nâng tầm giá trị sống!
>>Xem thêm: Mẫu thiết kế nội thất phong cách hiện đại tại An Lão – Hải Phòng 4.5x25m
