Biệt thự 3 tầng hiện đại Anh Đạt – Thái Nguyên
Biệt thự 3 tầng hiện đại Anh Đạt – Thái Nguyên
Chủ đầu tư : Anh Nguyễn Mạnh Đạt
Địa điểm xây dựng : Thành Phố Thái Nguyên
Ngôi biệt thự được thiết kế với một phong cách hiện đại và phù hợp cho những doanh nhân như anh Đạt.
Với khuôn viên khu đất rộng 1,288m2, kiến trúc sư nhà đẹp 365 đã tư vấn thiết kế tổng diện tích xây dựng là 480m2 gồm cả bể bơi và tiểu cảnh
Mặt bằng tầng 1 được bố trí là không gian sinh hoạt công cộng cho cả gia đình gồm gara, không gian khách và bếp ăn, và nhất là một không gian lý tưởng của bể bơi ngoài trời.

Mặt bằng tầng 2 được bố trí 2 phòng ngủ rất rộng rãi và thoải mái, điểm ở giữa là không gian sinh hoạt chung để kết nối giữa các không gian ngủ.

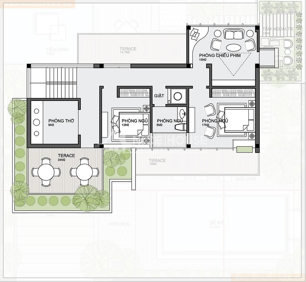
Mặt bằng tầng 3 được các KTS bố trí 2 phòng ngủ, một rạp chiếu phim mini và không gian của phòng thờ

Phối cảnh ngôi biệt thự hiện đại 3 tầng

Chắc hẳn rằng khi mỗi chúng ta xem xong những hình ảnh về ngôi nhà tương lai của mình trong viễn cảnh này, thì ai cũng có thể muốn có một ngôi biệt thự hiện đại và sang trọng tiện nghi thế này.
Xem thêm chi tiết ở Album ảnh dưới đây
